
| Construction | ALUMINUM |
| Number of Wheels | 4 |
| Axle Capacity | 7000 |
| Wheel Size | 235/85R16 |
| Coupler | 2-5/16 |
| # of Horses | 3 |
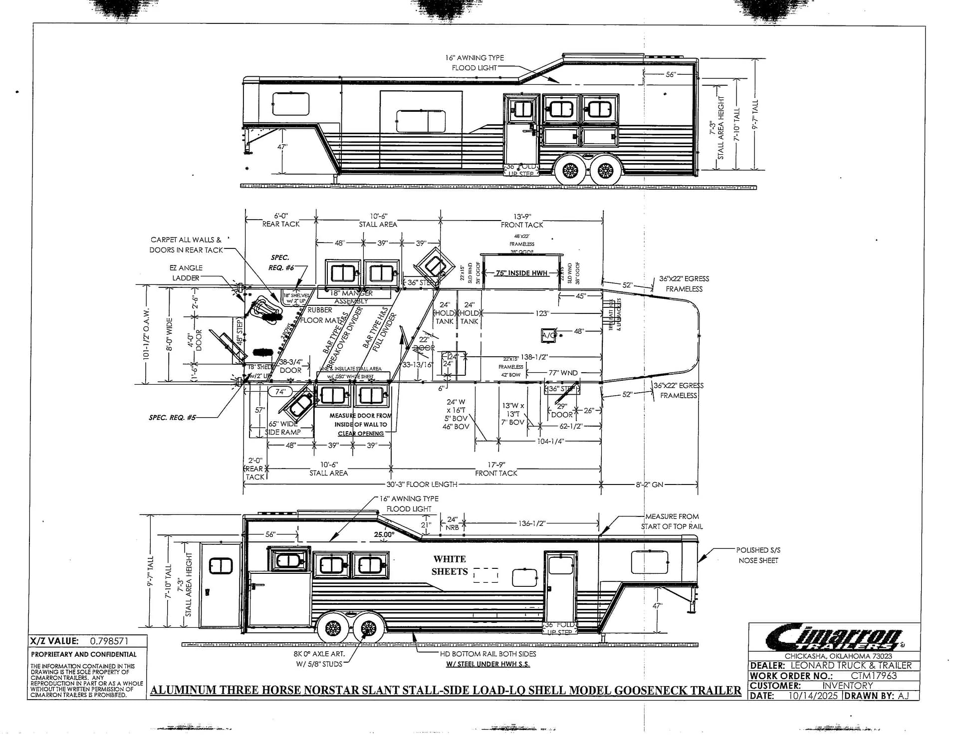
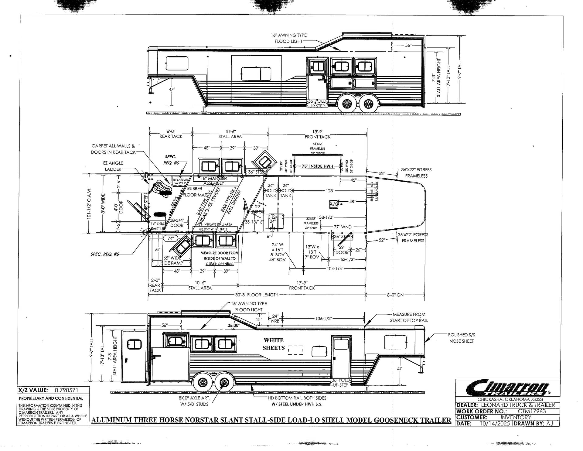
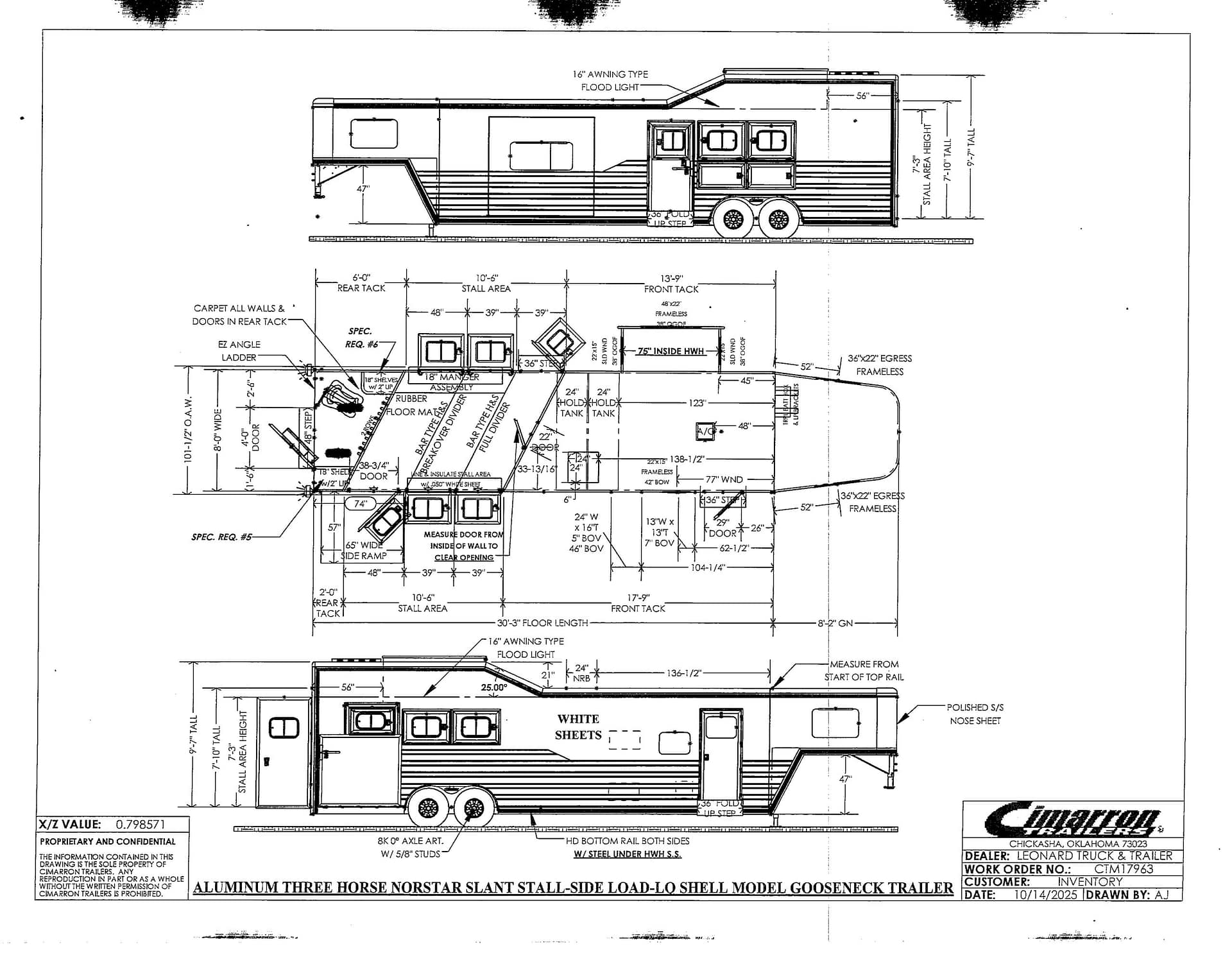
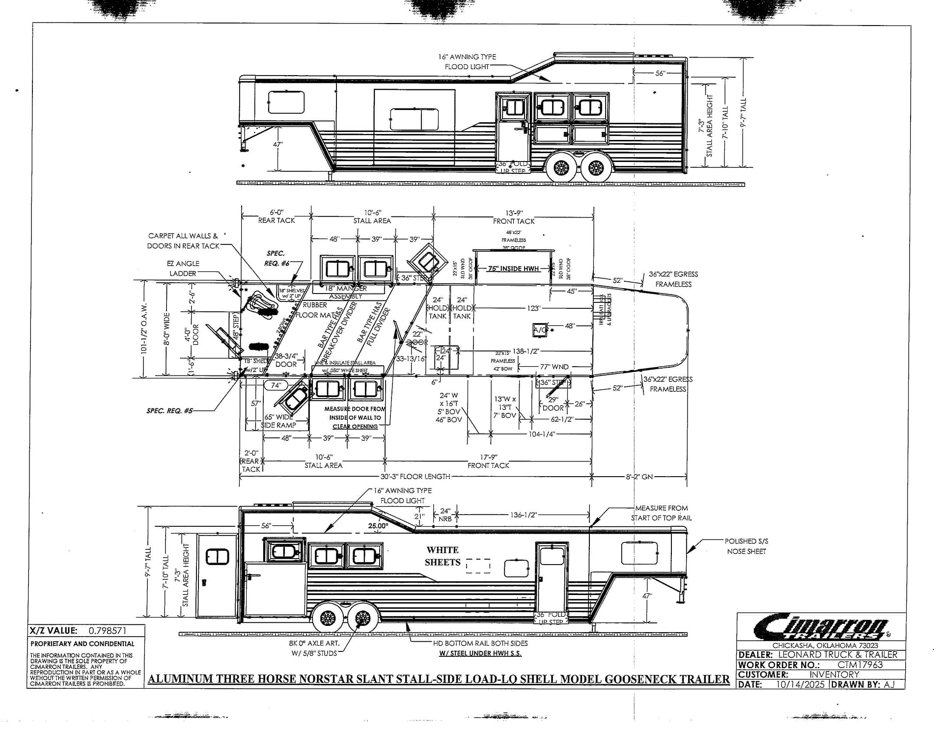
New Cimarron Gooseneck with 12′ living quarters 3 horse side load trailer with a length 35′, width 8′, height 7’7”, LQ 12′ -slant dress, dual electric/hydraulic with 12 volt battery and compartment, drive train 7,000# Dexter torflex axles, tires -st235/85 r 16” lr-g, triple rv battery box under GN, front tack room is a solid partition slant wall, full height and width, rear opening is a single rear door with a partial wall(for rear tack), stall area 32” access door with feed door, feed doors are a head side -fold down type with safety bars, sliding windows in stall area, ramps over side access door, one partial divider and one full divider in stall area, 2 doors and compartment lights in manger assembly, kick mat and lining on lh and front walls, then on rh wall and rear wall, double wall and insulation and kick mats, dome lights, bridle hooks, brush trays, pop up vents, fold up steps, removable saddle racks, 4 blanket poles with swing out, add recessed paddle latch on side access door in first stall, side access door -39” on rh side of #3 stall for side load, #3 stall is 48” wide for side load, carpet all walls and doors of full rear tack, rear tack door is 48” wide, in lq solid oak, maple or alder trim and cabinets throughout, chair rail in living area and bathroom, hanging closets with a countertop and a mirror at the front of the Gooseneck area, solid wood bathroom door, a/c,microwave, 2 burner cook top with lp gas, 12 volt non lighted bathroom fan, carpeted flooring in gooseneck, insulated flooring in ceiling and walls, reading lights in gooseneck on switch, led ceiling lights throughout, led lighted grab handle, led exterior 12 volt porch light, hook up light under GN, 55 amp power converter, group 27 deep cycle battery, on demand pressure water system tested at 100 psi, auto light 6 gallon gas water heater, porcelain toilet, glass shower door, outside water spigot, dual 20# lpg tanks with auto change regulator, roll up night shades on all windows with snap cover on entry door window. Call for more details!!!
**We believe that these specifications to be accurate. Any discrepancies are unintentional. Please verify information with a sales associate prior to purchase.**
Stock Number:45233
This website uses cookies and similar technologies to operate the site, analyze data, improve user experience, and show ads. You can choose to agree to the use of these technologies or adjust your settings. Please view our Privacy Policy
Websites store cookies to enhance functionality and personalise your experience. You can manage your preferences, but blocking some cookies may impact site performance and services.
Essential cookies enable basic functions and are necessary for the proper function of the website.
Google reCAPTCHA helps protect websites from spam and abuse by verifying user interactions through challenges.
Google Tag Manager simplifies the management of marketing tags on your website without code changes.
Statistics cookies collect information anonymously. This information helps us understand how visitors use our website.
Google Analytics is a powerful tool that tracks and analyzes website traffic for informed marketing decisions.
Service URL: policies.google.com
You can find more information in our Privacy Policy and Privacy Policy.

* DENOTES A REQUIRED FIELD AND MUST BE FILLED IN
Prequalification does not guarantee approval—it simply gives us a quick snapshot based on the basic information you provide.
* DENOTES A REQUIRED FIELD AND MUST BE FILLED IN

* DENOTES A REQUIRED FIELD AND MUST BE FILLED IN
* DENOTES A REQUIRED FIELD AND MUST BE FILLED IN